Добро пожаловать на http://vipplan.ru

Випплан Темрюк - это тысячи проектов домов в нашем каталоге!

Вы всегда сможете найти для себя проект дома вашей мечты! Даже если этого не случилось, мы готовы в любую минуту предложить проект индивидуального дома.

Забыли пароль?
Вы еще не регистрировались?

Перейдите по ссылке ниже на страницу регистрации.

Регистрация...

Внимание!!!

В проектную документацию могут быть внесены изменения любой сложности, в соответствии в Вашими пожеланиями!

Полезные статьи

Виды фундаментов

Можно смело сказать, что самое главное качество фундамента - надежность. Фундамент дома бывает нескольких видов. Все они отличаются прочностью, технологией закладывания и областью использования. Запомните, экономить на фундаменте – плохая идея. Затраты на ремонт будут огромными, а зачастую в случае нарушения технологии закладки фундамента исправить ошибку будет невозможно....

Проекты быстровозводимых домов и коттеджей в Темрюке

Некоторые люди до сих пор считают, что быстровозводимые дома представляют собой безликие, недолговечные, однотипные строения. Эти утверждения не соответствуют действительности. На данный момент, строительные технологии шагнули вперед и дома «быстрого приготовления» считаются эталоном комфорта, уюта и даже выделяются, в архитектурном плане, на фоне дорогих кирпичных коттеджей. Быстровозводимые дома не дорогие и изготавливаются в кратчайшие сроки....

Проекты домов и коттеджей > Каталог проектов домов > Проект компактного одноэтажного дома с мансардой и эркером Vg2446

Проект компактного одноэтажного дома с мансардой и эркером Vg2446

Проект компактного одноэтажного дома с мансардой и эркером
Зарегистрируйтесь

Проект № Vg2446


Техническое описание
Общая площадь: 93.9 м2
Жилая площадь: 58.1 м2
Высота здания: 8.15 м
Размеры дома: 7.14м×9.84м
Кол-во комнат: 3
Цокольный этаж: нет
Гараж: нет
Мансарда: есть

Kонструкция
Фундамент: Свайно-ростверковый
Перекрытия: Деревянные балки перекрытия
Материал стен: Дерево

Архитектурный раздел
Конструктивный раздел
АР+КР - 44 000 (Со скидкой 20%)
Проект одноэтажного жилого дома с мансардой с размерами здания 7,14 x 9,84 м. Наружная отделка здания - фасадная штукатурка. Фундамент - свайно-ростверковый. Наружные стены - брус с утеплителем и отделкой фасадной штукатуркой. Внутренние стены - брус. Перегородки - брус. Пол первого этажа - пол по деревянным балкам перекрытия. Межэтажное перекрытие - деревянные балки перекрытия. Крыша - многоскатная. Кровля - битумная черепица. Окна - металлопластиковые. Лестница - деревянная.
Генплан застройки участка / Паспорт проекта 7000 руб / 10000 руб
Инженерный раздел (полный) 50000 руб
Смета на строительство 25000 руб
Теплотехнический расчет материалов стен Бесплатно
Стоимость проекта со незначительнми изменениями 52650 руб
Стоимость проекта со средними изменениями* 59700 руб
Стоимость проекта со значительными изменениями** 61600 руб

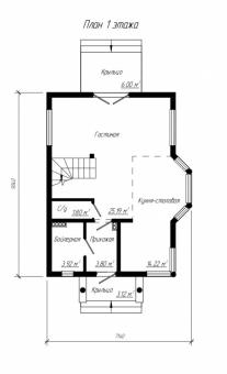
План первого этажа


Прихожая - 5,93 кв м
Кухня-столовая - 14,22 кв м
Гостиная - 25,19 кв м
С/у - 1,80 кв м
Бойлерная - 3,92 кв м

План мансардного этажа


Холл - 2,60 кв м
С/у - 8,00 кв м
Спальня - 13,52 кв м
Спальня - 19,39 кв м
Балкон — 0,62 кв м
Балкон - 0,84 кв м
Проект компактного одноэтажного дома с мансардой и эркером Проект компактного одноэтажного дома с мансардой и эркером Проект компактного одноэтажного дома с мансардой и эркером Проект компактного одноэтажного дома с мансардой и эркером

Модификации проектов

Внесение изменений и привязка к участку строительства

В любой из проектов от компании VIPplan - Темрюк по вашему желанию могут быть внесены изменения в материалы стен, материалы наружной отделки дома, а также будет произведена адаптация проекта под конкретный регион строительства (с учетом грунтов региона, геологических особенностей вашего участка и местных климатических условий) - БЕСПЛАТНО !!! (кроме проектов со скидкой и проектов наших партнеров).

Любой из проектов, размещенных на сайте temryuk.vipplan.ru мы можем выполнить из требуемых вам строительных материалов: ячеистый бетон (газобетон, пеноблок), керамоблок, кирпич, шлакоблок, бетонный блок, дерево (брус, клееный брус), каркасная технология (деревянный каркас, металлокаркас (ЛСТК)).

Фасад дома и его наружную отделку так же возможно выполнить с применением различных облицовочных материалов: структурной штукатурки, (с утеплителем и без), сайдингом (пластиковый или металлосайдинг), фиброплитами, кирпича.

 
6 Избранные
проекты

Доставка проектов по России: Москва (Московская область), Санкт-Петербург (Ленинградская область), Краснодар, Ростов-на-Дону, Ставрополь, Сочи, Волгоград, Новосибирск, Белгород, Брянск, Воронеж, Саратов, Хабаровск, Астрахань, Нальчик, Владикавказ, Екатеринбург, Тюмень, Самара, Нижний Новгород, Казань, Пермь, Уфа, Челябинск, Красноярск, Ханты-Мансийск, Иркутск, Курган, Оренбург, Омск, Томск, Барнаул, Новокузнецк, Кемерово, Абакан, Чита, Якутск, Южно-Сахалинск, Петропавловск-Камчатский и страны ближнего зарубежья: Белоруссия, Украина, Казахстан