Добро пожаловать на http://vipplan.ru

Випплан Темрюк - это тысячи проектов домов в нашем каталоге!

Вы всегда сможете найти для себя проект дома вашей мечты! Даже если этого не случилось, мы готовы в любую минуту предложить проект индивидуального дома.

Забыли пароль?
Вы еще не регистрировались?

Перейдите по ссылке ниже на страницу регистрации.

Регистрация...

Внимание!!!

В проектную документацию могут быть внесены изменения любой сложности, в соответствии в Вашими пожеланиями!

Полезные статьи

Правильная изоляция подвала

Какой выбрать материал, как правильно выполнить работу, перед началом изоляции подвала какие подготовительно-строительные работы следует провести и какой момент играет правильное выполнение работ. Последние несколько лет придали много хлопот жильцам домов, увлажнив им подвалы. Этот период показал насколько важно обеспечить надлежащую защиту зданий от грунтовых вод и воздействия влаги....

Системы утепления фасада

Основные тепловые потери происходят через стены, фундамент и крышу. Уменьшить их можно с помощью утеплителя, создав внутри дома оптимальный для жизни климат, с достаточно ровным температурным режимом и низкой влажностью....

Проекты домов и коттеджей > Каталог проектов домов > Проект удобного одноэтажного дома Vg1332

Проект удобного одноэтажного дома Vg1332

Проект удобного одноэтажного дома
Зарегистрируйтесь

Проект № Vg1332


Техническое описание
Общая площадь: 89.47 м2
Жилая площадь: 60.9 м2
Высота здания: 5.82 м
Размеры дома: 12.7м×7.5м
Кол-во комнат: 4
Цокольный этаж: нет
Гараж: нет
Мансарда: нет

Kонструкция
Фундамент: Монолитная ж/б плита
Перекрытия: Деревянные
Материал стен: Каркас

Архитектурный раздел
Конструктивный раздел
АР+КР - 44 000 (Со скидкой 20%)
Проект индивидуального одноэтажного жилого дома с размерами 12,7 x 7,5 м. Наружная отделка здания – облицовочный кирпич. Отделка цоколя – клинкерная плитка. Фундамент – монолитная ж/б плита. Наружные стены – деревянный каркас, утеплитель и облицовочный кирпич. Внутренние стены – деревянный каркас и тепло-шумоизоляционный материал. Перегородки – гипсокартон на металлическом каркасе. Пол этажа – пол по фундаментной плите. Перекрытие чердачное - по деревянным балкам с использованием тепло-шумоизоляционных материалов. Крыша - двускатная. Материал кровли – битумная черепица. Окна - металлопластиковые, выполненные по индивидуальному заказу.
Генплан застройки участка / Паспорт проекта 7000 руб / 10000 руб
Инженерный раздел (полный) 50000 руб
Смета на строительство 25000 руб
Теплотехнический расчет материалов стен Бесплатно
Стоимость проекта со незначительнми изменениями 52750 руб
Стоимость проекта со средними изменениями* 59500 руб
Стоимость проекта со значительными изменениями** 61200 руб

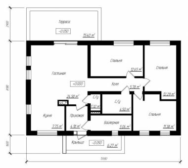
План первого этажа


Крыльцо — 6,27 кв м
Бойлерная — 5,04 кв м
Прихожая — 4,18 кв м
Кухня— 7,75 кв м
С/у — 1,32 кв м
Холл — 5,78 кв м
Гостиная — 24,58 кв м
Терраса — 15,40 кв м
Спальня — 12,65 кв м
Спальня — 12,29 кв м
Спальня — 11,38 кв м
С/у — 4,50 кв м
Проект удобного одноэтажного дома Проект удобного одноэтажного дома Проект удобного одноэтажного дома Проект удобного одноэтажного дома

Модификации проектов

Внесение изменений и привязка к участку строительства

В любой из проектов от компании VIPplan - Темрюк по вашему желанию могут быть внесены изменения в материалы стен, материалы наружной отделки дома, а также будет произведена адаптация проекта под конкретный регион строительства (с учетом грунтов региона, геологических особенностей вашего участка и местных климатических условий) - БЕСПЛАТНО !!! (кроме проектов со скидкой и проектов наших партнеров).

Любой из проектов, размещенных на сайте temryuk.vipplan.ru мы можем выполнить из требуемых вам строительных материалов: ячеистый бетон (газобетон, пеноблок), керамоблок, кирпич, шлакоблок, бетонный блок, дерево (брус, клееный брус), каркасная технология (деревянный каркас, металлокаркас (ЛСТК)).

Фасад дома и его наружную отделку так же возможно выполнить с применением различных облицовочных материалов: структурной штукатурки, (с утеплителем и без), сайдингом (пластиковый или металлосайдинг), фиброплитами, кирпича.

 
6 Избранные
проекты

Доставка проектов по России: Москва (Московская область), Санкт-Петербург (Ленинградская область), Краснодар, Ростов-на-Дону, Ставрополь, Сочи, Волгоград, Новосибирск, Белгород, Брянск, Воронеж, Саратов, Хабаровск, Астрахань, Нальчик, Владикавказ, Екатеринбург, Тюмень, Самара, Нижний Новгород, Казань, Пермь, Уфа, Челябинск, Красноярск, Ханты-Мансийск, Иркутск, Курган, Оренбург, Омск, Томск, Барнаул, Новокузнецк, Кемерово, Абакан, Чита, Якутск, Южно-Сахалинск, Петропавловск-Камчатский и страны ближнего зарубежья: Белоруссия, Украина, Казахстан